ZONA TORRAZZI - CAVO ARGINE NUOVA VILLA D'ANGOLO IN BORGO DI 5 UNITA'

Modena - zona Torrazzi

Rif: 509
Condividi Linkedin Whatsapp Stampa
€ 420.000
Villa a schiera
220 Mq
6 Vani
Giardino
Classe energetica Non indicata
3 Camere
2 Bagni
Garage
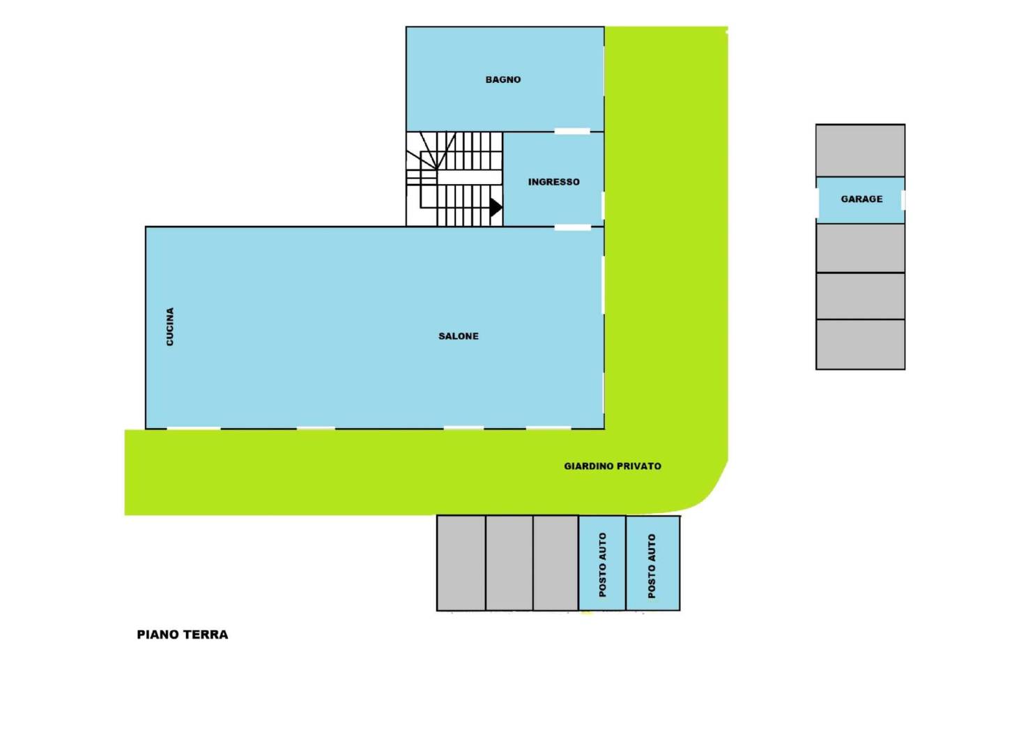
Rif: 509 - Immagina un luogo dove ogni giorno è una celebrazione dello spazio, della luce e della natura. La tua ricerca finisce qui! Nel suggestivo borgo di Cavo Argine/Torrazzi, ti proponiamo una magnifica villa d'angolo di nuova costruzione, un vero gioiello di design e comfort, pronta ad accogliere i tuoi sogni.

Con 220 mq di puro benessere e un giardino privato di 250 mq, avrai tutto lo spazio per la tua famiglia, i tuoi hobby e i tuoi momenti all'aria aperta. Dalle cene in giardino ai giochi dei bambini, qui la vita si anima.

Gli interni, curati nei minimi dettagli, ti offrono al piano terra un ampio salone, una cucina perfetta per i tuoi capolavori culinari e un bagno. Il primo piano è dedicato al riposo, con una camera matrimoniale, una singola accogliente e un secondo bagno. E al secondo piano? Una mansarda da sogno con un'altra matrimoniale, bagno e locale tecnico, ideale per un angolo studio o relax.

Vivi senza pensieri grazie all'autonomia del riscaldamento a GPL, la predisposizione per l'aria condizionata e l'impianto fotovoltaico che ti garantisce un'eccellente Classe Energetica A1 (EPtot 77,26). Completano l'offerta due posti auto e un garage di 20 mq.

Una villa pensata per il tuo benessere, subito disponibile a Euro 420.000,00

Non lasciartela sfuggire! Chiama subito il Geom. Magni al 335 5686314 e vieni a scoprire la tua nuova casa.

Dettaglio immobile

Contratto Vendita
Rif 509
Prezzo € 420.000
Provincia Modena
Comune Modena
Zona Torrazzi
Superficie 220 mq
Vani 6
Camere 3
Bagni 2
Classe energetica Non indicata
Riscaldamento autonomo
Condizioni ottime condizioni
Anno di costruzione 2025
Ascensore no
Garage singolo si
Parcheggio si
Giardino
Cucina a vista
Mansarda si

Richiedi maggiori informazioni

Autorizzazione al trattamento dei dati personali+
Dichiaro di aver letto l'informativa sulla privacy ed accetto le condizioni d'utilizzo del servizio.
Riempi il campo con il codice riportato nell'immagine*
Codice Captcha
FIMAA
Chiamaci Contattaci