PROPONIAMO IN VENDITA IN ESCLUSIVA - MODENA - PRESTIGIOSA VILLA - ZONA POLICLINICO/SANT'AGNESE -

Modena - zona Sant'Agnese - Università

Rif: 178
Condividi Linkedin Whatsapp Stampa
€ 1.300.000
Villa
600 Mq
17 Vani
Giardino
Classe energetica E
5 Camere
4 Bagni
Garage
Ascensore
Rif: 178 - ESCLUSIVA VILLA di Prestigio - ZONA SANT'AGNESE/POLICLINICO

Immersa nel Verde, Finiture di Altissimo Livello, Ideale anche come Bifamiliare

Proponiamo in vendita, in ESCLUSIVA, una prestigiosa VILLA in OTTIME CONDIZIONI, accatastata A/7, edificata negli anni 2000 con ascensore interno e completa insonorizzazione.

La proprietà è situata in un contesto residenziale esclusivo nella zona Sant'Agnese/Policlinico e sorge su un lotto alberato di circa 1.000 mq.

Caratteristiche Esclusive:

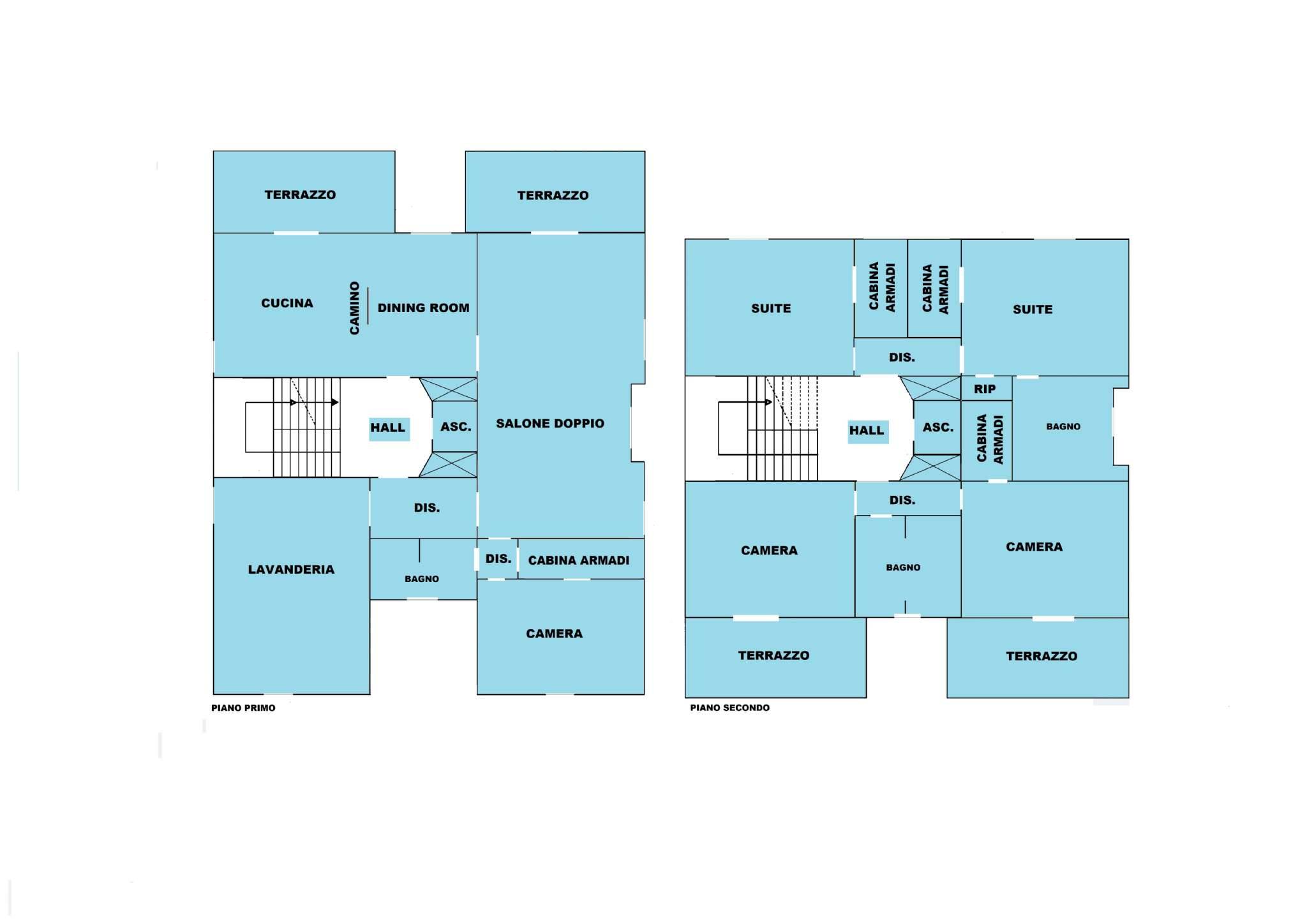
Dimensioni Generose: Disposta su 3 livelli per complessivi 600 mq. commerciali circa, con ampi terrazzi e un elegante portico.
Finiture di Pregio: L'immobile si distingue per le sue finiture interne di altissimo livello e per una struttura architettonica di grande fascino.
Giardino All'Italiana: Un grazioso giardino all'italiana con una bellissima fontana e un sistema di illuminazione suggestivo circonda la villa.
Comfort Moderno: Dotata di riscaldamento a pavimento, climatizzazione, aspirapolvere centralizzato, pavimenti in battuto veneziano, parquet, cotto e marmi. Impreziosita da camini.
Sicurezza Elevata: Un elevatissimo sistema di sicurezza garantisce tranquillità (allarme, inferriate, video sorveglianza).
Flessibilità d'Uso: La villa offre la possibilità di essere convertita in una comoda soluzione BIFAMILIARE.
Completano la Proprietà: Un garage triplo con basculanti automatici.
Informazioni Energetiche: Classe Energetica E (235,95 kWh/m² anno). L'Attestato di Regolarità Edilizia (ARE) è in fase di redazione.

Scopri di Più:

È disponibile un VIDEO EMOZIONALE dell'immobile prima del sopralluogo per apprezzarne appieno la bellezza e il potenziale.

Richiesta Economica: Eu. 1.300.000,00.

Contattaci per Ulteriori Informazioni:

Vista l'importanza della proprietà, per ricevere maggiori dettagli o concordare una visita, La preghiamo di contattare Vosino tramite WhatsApp al numero +39 328 5343659

Dettaglio immobile

Contratto Vendita
Rif 178
Prezzo € 1.300.000
Provincia Modena
Comune Modena
Zona Sant'Agnese - Università
Superficie 600 mq
Vani 17
Camere 5
Bagni 4
Classe energetica E (DL 192/2005)
EPI 235.95 kwh/m2 anno
Riscaldamento autonomo
Condizioni ottime condizioni
Anno di costruzione 2000
Ascensore si
Garage singolo si
Cantina si
Parcheggio si
Giardino
Cucina abitabile
Terrazza si

Video

Planimetrie

Richiedi maggiori informazioni

Autorizzazione al trattamento dei dati personali+
Dichiaro di aver letto l'informativa sulla privacy ed accetto le condizioni d'utilizzo del servizio.
Riempi il campo con il codice riportato nell'immagine*
Codice Captcha
FIMAA
Chiamaci Contattaci