PROPONIAMO IN VENDITA A CAMPOGALLIANO (MO) IN CENTRO STORICO CASA CON DUE APPARTAMENTI E UN UFFICIO

Campogalliano (Modena)

Rif: 515
Condividi Linkedin Whatsapp Stampa
€ 750.000
Palazzo
460 Mq
6 Vani
Classe energetica G
3 Bagni
Rif: 515 - CAMPOGALLIANO: UNA SOLUZIONE, INFINITE POSSIBILITÀ.

Nel cuore del suggestivo centro storico di Campogalliano, ti aspetta un'opportunità che va oltre la semplice idea di casa. Ti presentiamo una proprietà unica nel suo genere, un vero e proprio progetto di vita che si adatta a ogni tua esigenza.

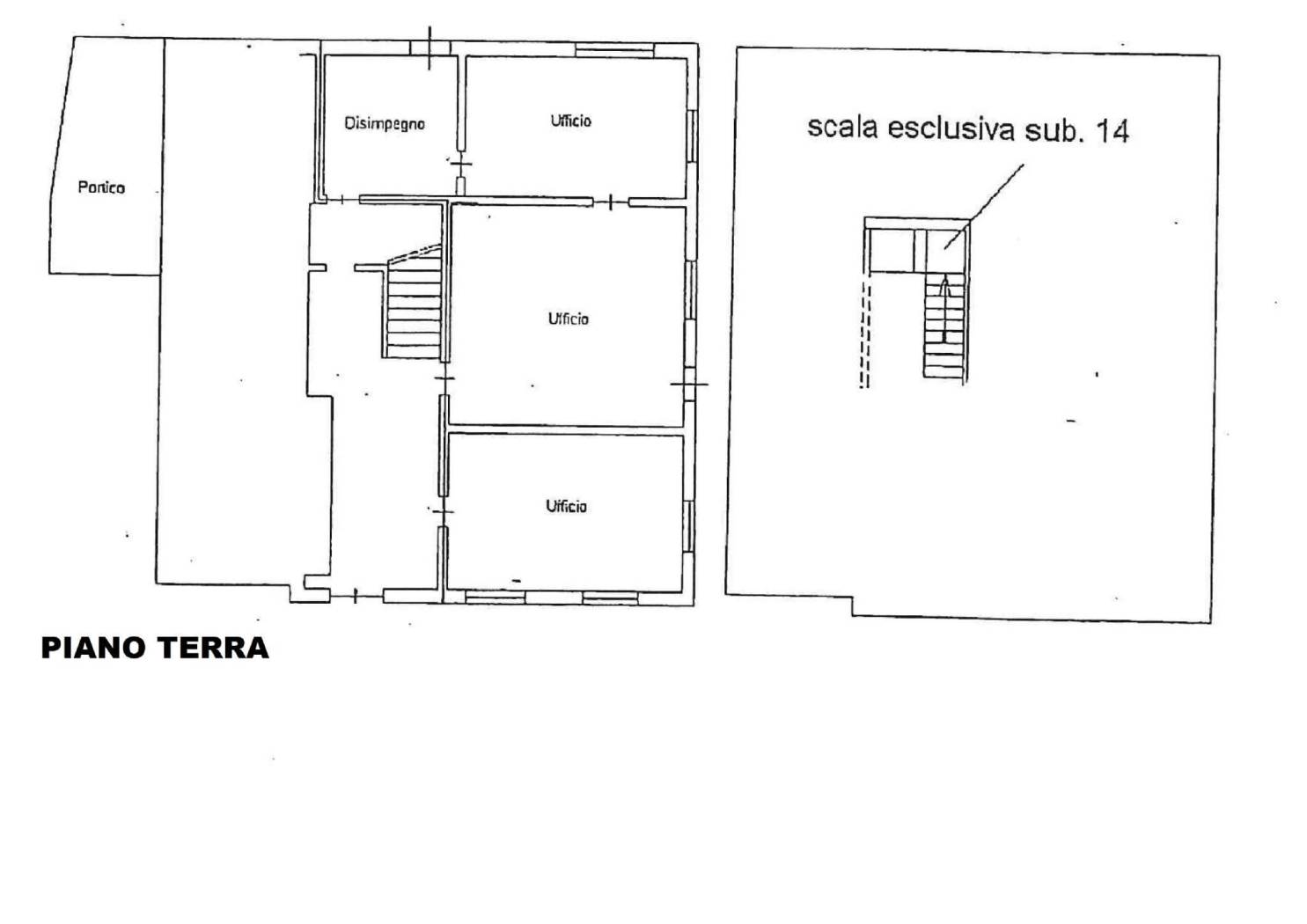
Immagina 460 mq di pura versatilità, circondati da un magnifico giardino privato di 1500 mq che offre privacy e tranquillità. Questa soluzione è già suddivisa in:

Due appartamenti indipendenti, perfetti per due famiglie che desiderano vivere vicine mantenendo la propria privacy.

Un ufficio professionale con accesso separato, che può essere facilmente convertito in una terza abitazione.

Ma il potenziale non finisce qui. Questa proprietà ti offre la libertà di creare fino a 4 o 5 unità abitative, rendendola l'investimento ideale per:

Famiglie numerose o più nuclei familiari che vogliono condividere gli spazi comuni senza rinunciare all'indipendenza.

Professionisti che sognano di unire la vita lavorativa e privata in un unico luogo.

Investitori alla ricerca di un immobile con un potenziale di rendita eccezionale e flessibile.

Non è solo una casa, è una tela bianca su cui dipingere il tuo futuro.

Il prezzo di questa opportunità unica è di Eu. 750.000,00

Non perdere l'occasione di trasformare questo progetto in realtà.

Classi G (eptot 303,15).

Per maggiori informazioni e per prenotare una visita, contatta il Geom. Magni al 335 5686314.

Dettaglio immobile

Contratto Vendita
Rif 515
Prezzo € 750.000
Provincia Modena
Comune Campogalliano
Superficie 460 mq
Vani 6
Bagni 3
Classe energetica G (DL 192/2005)
EPI 303.05 kwh/m2 anno
Anno di costruzione 1920
Ascensore no

Richiedi maggiori informazioni

Autorizzazione al trattamento dei dati personali+
Dichiaro di aver letto l'informativa sulla privacy ed accetto le condizioni d'utilizzo del servizio.
Riempi il campo con il codice riportato nell'immagine*
Codice Captcha
FIMAA
Chiamaci Contattaci